Gartensiedlung Gronauer Wald

Teil D: Denkmalbereich
Heidkamp
Denkmalnummer
D0002
Baujahr
Ab 1898
Adresse
Bergisch Gladbach Heidkamp
Objektbeschreibung
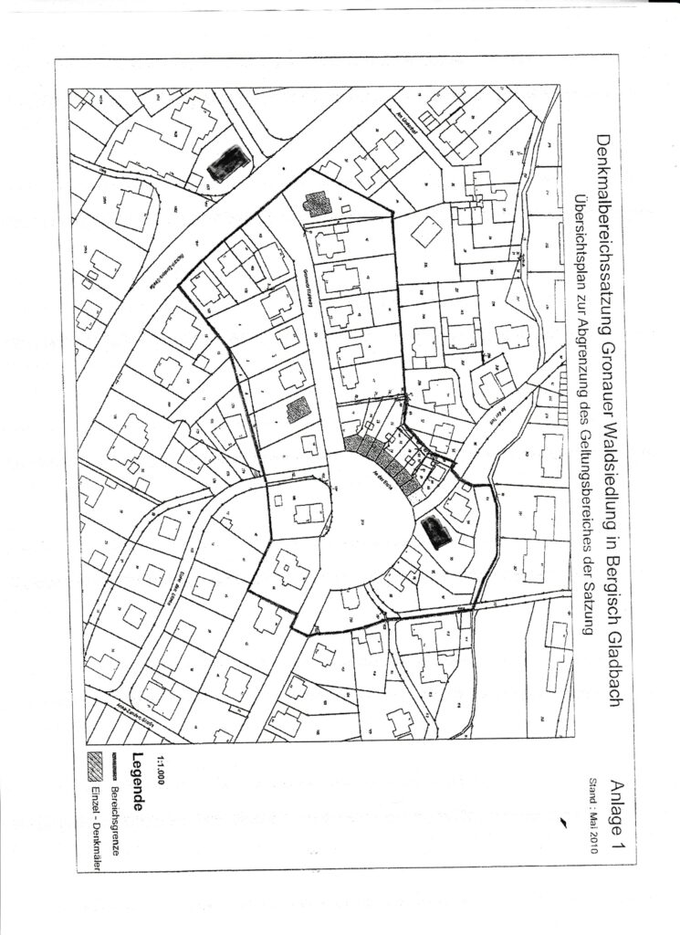
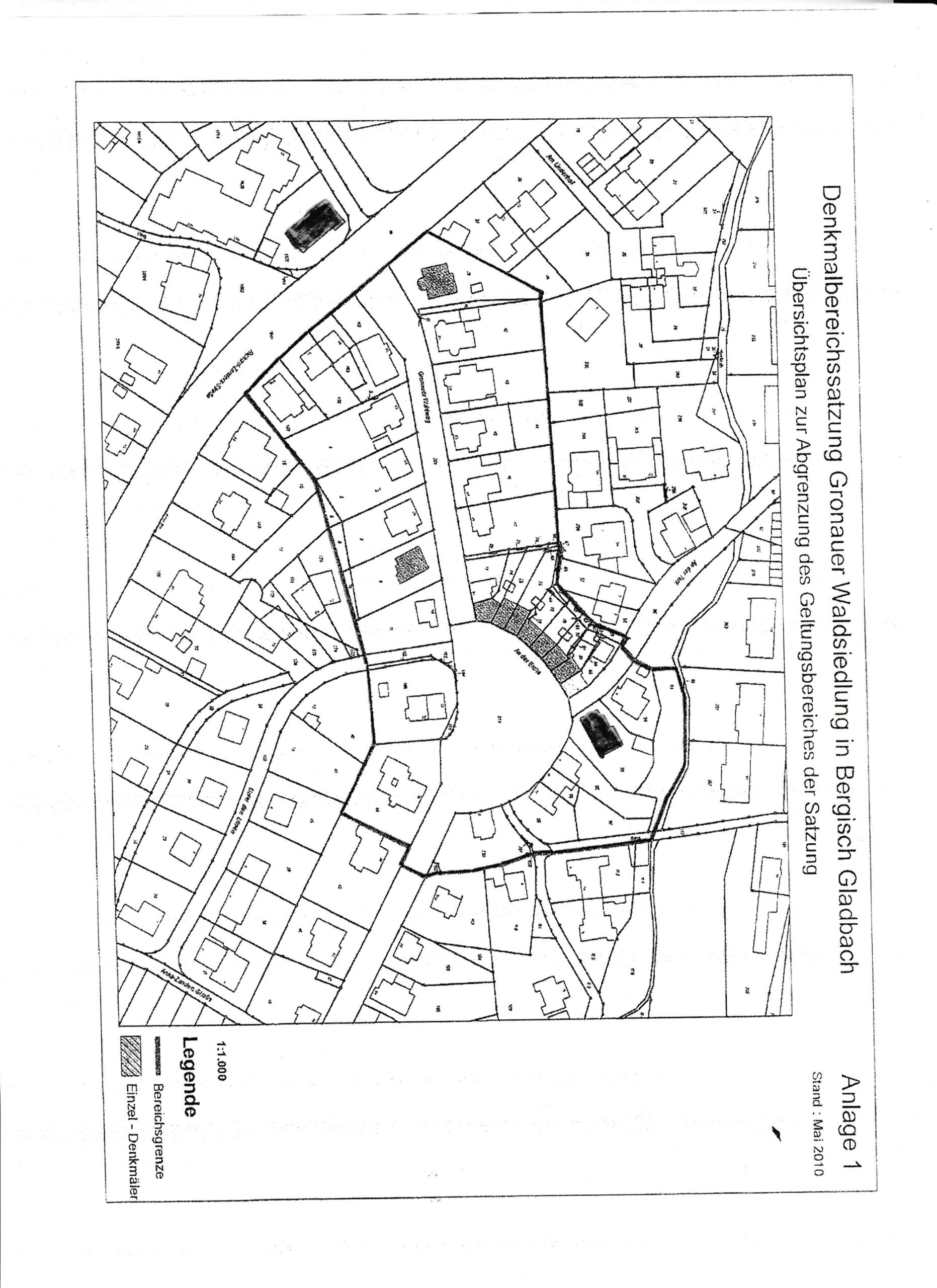
Das Gelände der Wohnsiedlung zeigt sich heute als recht heterogenes Wohnviertel. Die originalen Baukörper sind zum Teil sehr stark verändert, die Freiflächen haben ihren Charakter eingetauscht: Nutzgärten haben sich zu Ziergärten gewandelt, Gemüsebeete sind heute Rasenflächen. Die Entwicklung weist Brüche auf, sodass der Wert einer Plananlage als ein kontinuierlich gewachsenes Ganzes nicht gegeben ist. Jedoch überliefern einzelne Strassenabschnitte die ursprüngliche Idee und den historischen Eindruck und übermitteln die historische Aussage der Einzelobjekte zusammen mit strassenräumlichen Details wie Hecken, Zäune, Mauern, Strassenbäume sowie Vorgärten. Der historisch überzeugendste Siedlungsteil der ersten Bauphase ( 1898-1906 ) ist der Platz " An der Eiche " zusammen mit der Strasse " An der Tent ". In diesem kleinen Teil ist die ursprüngliche Idee der sorgfältig vorbereiteten und durchgeführten Siedlungsanlage bis heute anschaulich nachvollziehbar geblieben. An der Strasse " An der Eiche " und am Kreuzungspunkt stehen auf beiden Strassenseiten und um die platzähnliche Kreuzung untereinander in Volumen und Ausgestaltung gleichwertige Wohnhäuser der Anfangszeit. Sie bilden gemeinsam und zusammen mit den Gärten, mit dem Strassenraum, dem Baumbestand und mit dem Bewuchs ein kleines in sich stimmiges bauliches und städtebauliches Ensemble. Auf annähernd gleich geschnittenen rechteckigen Grundstücken stehen in offener Bauweise zweigeschossige, wechselnd giebel - und traufständige Putz - und Fachwerkbauten, zur Strasse mit schmalen Vorgärten, rückwärtig mit grosszügigeren Gartenanlagen. Dieses bauliche Ensemble erfüllt die Kriterien zur Ausweisung eines Denkmalbereiches mit ortsgeschichtlicher, sozialgeschichtlicher architektonischer und architekturgeschichtlicher, stadtbaugeschichtliche und städtebaulicher Bedeutung. Die inhaltlichen Schwerpunkte des Denkmalbereiches sind: die Erhaltung der städtebaulichen Qualität aus Struktur, Substanz, Freiflächen, Bewuchs und Blickbezügen. Die konkreten Schutzgegenstände sind: der Ortsgrundriss aus Strassen - und Wegeführung, Parzellenteilung und Platzbildung, die Bausubstanz insgesamt, Freiflächen mit dem charakteristischen Bewuchs und die Blickbezüge. Die Satzung ist seit 2011 rechtskräftig.
Literatur
KuLaDig, Kultur, Landschaft, Digital
Freundeskreis Gartensiedlung Gronauer Wald, Frank Grobolschek, 2009
Pufke ( Hrsg. ) 2016
Eintragung in Denkmalliste
29.03.2011
Koordinaten
7.127403 50.983076

Geschichte

1897 erwarb das Fabrikantenehepaar Anna und Richard Zanders ein etwa 30 Hektar grosses Gelände im Gronauer Wald. Mit der Industrialisierung im Verlauf des 19. Jahrhunderts war der Bedarf an Wohnraum auch in Bergisch Gladbach enorm angestiegen. Durch die Anlage einer Einfamilienhaussiedlung beabsichtigte das Fabrikantenehepaar Anna und Richard Zanders, in diese Entwicklung einzugreifen, stadtplanerischen Missständen entgegenzuwirken und soziale Probleme zu lindern. Mit der Gründung der Stiftung “ Einfamilienhaussiedlung Gronauer Wald “ 1897 verwirklichte Anna und Richard Zanders ihre Idee, einen neuen Ortsteil zu schaffen, der Bevölkerungsschichten durchmischte und Wohnen der Minderbemittelten in besonderer Weise berücksichtigte, ohne eine reine Arbeitersiedlung zu sein.

Der Königliche Gartenbaudirektor H. Brodersen aus Berlin erstellte den Bebauungsplan und plante die Gärten. In Zusammenarbeit mit dem Bergisch Gladbacher Verschönerungsverein entwarfen die Architekten Ludwig Bopp und Peter Will die Pläne für die Arbeiterwohnhäuser. Mit Schlagläden, Verputz und farbiger Anstrich konnte bei einfacher Formgebung und gute, zweckmässige und abwechslungsreiche Gestaltung erzielt werden. Die Grundstücke waren 500 bis 625 Quadratmeter gross. Die äussere Gestaltung der Häuser und ihre innere Struktur waren bei festgelegten Formen, Raumgrössen und Raumprogramm untereinander ähnlich.
Die Gärten teilten sich in einem schmalen Ziergarten zur Strasse und einen rückwärtigen Nutzgarten mit hochstämmigen Obstbäumen, Gemüsebeeten, Spalierobst an den Hauswänden, blühenden Gewächsen und mit einem Platz zum Bleichen. 1898 waren die ersten Gebäude fertig gestellt, 1900 begann die eigentliche Bautätigkeit ´. Am 8. Mai 1900 erhielt die Firma Zanders die Baugenehmigungen für das Rondell an der alten Eiche. Es entstand eine bogenförmige Reihe von 9 Fachwerkhäusern als in sich geschlossenes Ensemble. Überwiegend jedoch wurden in erster Bauphase freistehende Einfamilienhäuser errichtet, auch Doppelhäuser waren die Ausnahme. Als im März 1906 Richard Zanders starb, konnte die bis ins Detail durchdachte Konzeption nicht mehr mit der anfänglichen Stringenz umgesetzt werden, vielmehr kam die Bautätigkeit zum erliegen. In den Jahren 1907 bis 1913 entstanden nur noch 9 weitere Häuser. 1913 veranlasste die Witwe, Anna Zanders, die Umwandlung der bisherigen Privatstiftung “ Einfamilienhaussiedlung Gronauerwald “ in die “ Gemeinnützige Gartensiedlungsgesellschaft Gronauerwald mbH “

In der Zeit nach dem Ersten Weltkrieg, während der grossen Wohnngsnot, wuchs die Siedlung trotz anschlissender Inflation und Weltwirtschaftskrise bis 1929 auf 320 Häuser an. Bis 1937 entstanden einzelne Häuser für 200 Familien, baugleiche Wohnhäuser, symmetrische Reihenhäuser, in der Architektur einheitlicher und schlichter als die Bauten der ersten Bauphase. Zur Linderung der Wohnungsnot nach dem Zweiten Weltkrieg erarbeitete die Gesellschaft 1948 ein neues Wohnungsbauprogramm, das zunehmend Mehrfamilienhäuser vorsah.

Bearbeitet: Dietmar Weiß